CN

EN

我们于研发、设计、生产、销售为一体,提供设计+安装+维护全方位服务

迪锐康DOORACO医用门整体解决方案

   

双开医用自动门

医用米兰体育(中国)官方在线登录-洁净区域

应用区域:

可选颜色:

  • D001 亚光淡粉红
  • D002 亚光乳白色
  • D003 亚光象牙白
  • D004 亚光蓝灰色
  • D005 亚光奶油淡绿
  • D006 亚光淡蓝色
  • D007 亚光浅蓝色
  • D008 亚光淡黄色
  • D009 亚光淡天蓝
  • D0010 亚光淡紫蓝
  • D0011 亚光景蓝色
  • D0012 亚光群青色

备注:因加工批次不同,实物与色板可能略有色差,可根据要求定制颜色。

查看产品说明

产品特点

▪ 控制系统完全按照医用电气系统安全要求设计并可根据医院方的要求采取多种控制方式,不对同一环境的其它设备形成电磁干扰。
▪ 动力梁及门体直接外挂于墙体,安装快速简单。
▪ 门体配装安全感应器可自动检测到位于门体中间的障碍物,防夹使门保持开启,保障行人或设备安全。
▪ 门体四方采用医用硅胶密封胶条密封,两扇门接口处采用凹凸卡口设计。
▪ 整体运行轻快安静,室内外隔音效果好。 

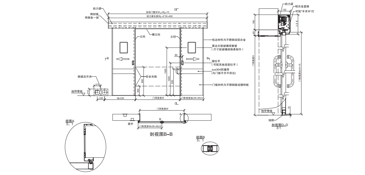
设计参考图

技术参数

产品说明

联系我们

重庆感应自动门_重庆防辐射铅门_重庆医用气密门_重庆钢质洁净门_高品质医用门——米兰官方版网站登录入口

地址:重庆市 九龙坡区 龙渡路87号壹本科工城C区

电话:023-65378685 , 13983046226

邮箱:dooraco@163.com

网址:www.issbr.com

重庆感应自动门_重庆防辐射铅门_重庆医用气密门_重庆钢质洁净门_高品质医用门——米兰官方版网站登录入口

重庆市 九龙坡区 龙渡路87号壹本科工城C区

023-65378685 , 13983046226

版权所有©米兰官方版网站登录入口 技术支持:像之素科技

渝ICP备20008021号